1048 Clarke Rd Triplex
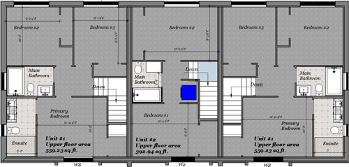
Two new 3 bedroom units and one new 2 bedroom unit are under construction with a scheduled completion of early April and available for purchase now. The 3 bedroom units are 1,145 square feet with two and a half bathrooms priced at $829,000.00. The 2 bedroom unit is 814 square feet with one and a half bathrooms priced at $699,000.00. All the new townhomes have custom built cabinetry for the kitchens and bathrooms with quartz tops, engineered wood flooring for main floor and luxurious carpet for the bedrooms. Each bathroom will have smart toilets installed, elevating their function and abilities. New stainless steel kitchen appliances and stacking laundry units are included with purchase.
Each townhome has it's own fenced in backyard area with private patio and wood trellis feature. The front yard features existing mature trees, new landscaping, permeable paver driveway with parking for each unit, a common garden area and bike parking. An electric car charger has been wired in for each parking stall.
Advanced construction methods are employed with the exterior walls and interior partition walls are built using Nudura ICF forms, providing a 6" solid concrete wall with 5.25" of rigid styrofoam as a separation between units. These homes are built beyond code requirements to provide quiet spaces with increased temperature control over traditional wood framed buildings. Each unit has it's own ducted heat pump system keeping them warm in the winter and cool in the summer, the ICF walls reduce noise transfer and increase temperature consistency inside the homes.
Maximizing storage spaces is a focus for Harbour Oak Homes, we provide a full crawlspace under the main floor area. This space is accessed by an interior set of stairs and has a clearance of 4'10", providing excellent storage for each unit. Each bedroom will have large closets with custom closet systems installed to extend storage capabilities. All units will have individual bike storage lockers in the back yard area which will provide secure storage with electrical outlets available for battery charging inside.
















